2 / 8
85 m²
4 pièces
3 chambres
10 m²
1
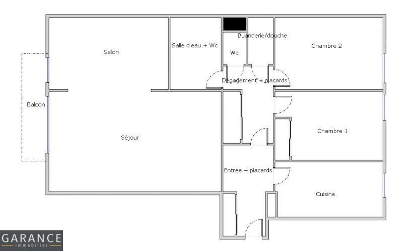
Proche du bois de Vincennes et de tous commerces - Dans un immeuble de standing récent et récemment ravalé, avec accès PMR, caméras, un appartement EN BON ETAT, TRAVERSANT, LUMINEUX de 4 pièces principales, comprenant une entrée, un double séjour donnant sur un BALCON exposé SUD-EST, une cuisine indépendante équipée (refaite), 2 chambres au CALME donnant sur JARDIN (3e chambre possible), une buanderie (ou dressing, possibilité d'une seconde salle d'eau et d'un second WC), une salle de bains (refaite) et des WC séparés (refaits). Une cave complète ce bien. Possibilité de box en sus dans la copropriété.